стр. №1 Дом с гаражом 115м2 (Рядом Косулино, Мельница, Чистые росы, Рассоха)
Продажа дома (коттедж) 2016 г.п. общей площадью 115 м2
Адрес: 624039,Россия, Свердловская область, Белоярский район, д. Поварня, ул. Кленовая 63а (прописка)
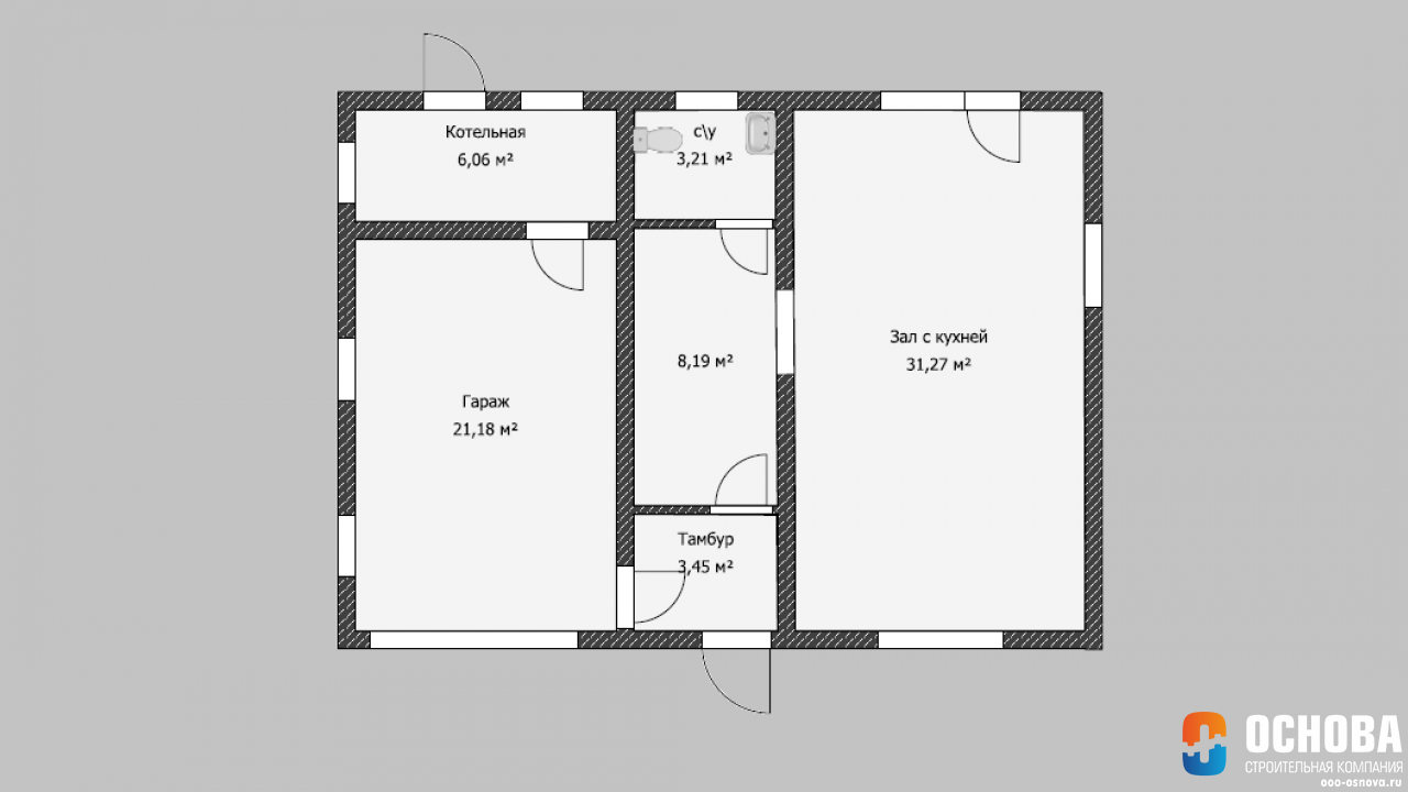
На первом этаже просторная гостиная - столовая, с/у, гараж, котельная, на втором этаже две большие спальни, кладовка, с/у большой, ванна.
Описание объекта:
Участок - ИЖС – 7,23 соток. (расположения участка на схеме)
Кадастровый номер 66:06:0501003:599
Дом:
Фундамент - ростверк по буро заливным сваям, бетон М-250.
Стены - газобетонные блоки, сборка на клей.
Кровля - волнистый лист (ондулин), утеплитель.
Окна - пластиковые двух камерные стеклопакеты.
Фасад - декоративная штукатурка «короед» по утеплителю.
Чистовая отделка - полы ламинат, двери, сейф дверь, обои, с/у плитка, укомплектованы сантех приборами.
Коммуникации:
Электричество - 3 фазное до 15 кВт.
Отопление - эл. котел, 1этаж теплые водяные полы, 2 этаж конвектора.
Водоснабжение - скважина (заведена в дом), насос, фильтр, эл водонагреватель, и т.д.
Канализация - выгребная яма.
Газ - запланированная газификация в 2020-2022 г.
Интернет - есть возможность завести в дом оптико-волокно.
Инфраструктура:
Электричка - 20 минут ходьбы до ж/станции. «29 км» Каменск-Уральское направление практически каждый час. Удобно с точки зрения доступности городской инфраструктуры - 45 минут до ст. Первомайская
Маршрутка \ автобус - есть
Автомобиль - Удачное расположение с транспортной точки зрения: подъезды с Тюменского тракта, Старо-сибирского тракта, через Арамиль. Время в пути на автомобиле 30 минут (от д. Поварня-до центра Екатеринбурга)
Школа - Для учащихся ходит школьный автобус до Косулино где расположена школа.
Имеется протокол исследования воды в скважинах от 27.03.2017г. который можно посмотреть здесь
Это дом уже нашел своего хозяина, но мы можем построить Вам такой-же.













