стр. № 3-89 Одноэтажный дом 70 м2
Новый 1 этажный дом (коттедж) 2019 г.п. общей площадью 70 м2.
Адрес: Индекс: 624039, Россия, Свердловская область, Белоярский район, д. Поварня, ул. Кленовая, 89 (прописка)
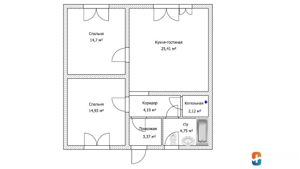
На этаже просторная гостиная - столовая, 2 спальни, с/у, ванна, котельная.
Описание объекта:
Участок - ИЖС - 9,64 соток.
Кадастровый номер - 66:06:0501003:427
Дом:
Фундамент - ростверк по буро заливным сваям.
Стены - газобетонные блоки.
Кровля - ондулин, утеплитель.
Окна - пластиковые двух камерные стеклопакеты.
Фасад - декоративная штукатурка «короед» по утеплителю.
Чистовая отделка - полы плитка, двери, сейф дверь, обои, с/у плитки, укомплектованы сантех приборами.
Коммуникации:
Электричество - 3 фазное до 15 кВт.
Отопление - эл. котел, теплые водяные полы.
Водоснабжение - скважина (заведена в дом), насос, фильтр, эл водонагреватель, и т.д.
Канализация - выгребная яма.
Газ - запланированная газификация в 2020-2022 г.
Интернет - есть возможность завести в дом оптико-волокно.
Инфраструктура:
Электричка - 20 минут ходьбы до ж/станции. «29 км» Каменск-Уральское направление практически каждый час. Удобно с точки зрения доступности городской инфраструктуры - 45 минут до ст. Первомайская
Маршрутка \ автобус - есть
Автомобиль - Удачное расположение с транспортной точки зрения: подъезды с Тюменского тракта, Старо-сибирского тракта, через Арамиль. Время в пути на автомобиле 30 минут (от д. Поварня-до центра Екатеринбурга)
Школа - Для учащихся ходит школьный автобус до Косулино где расположена школа.


